Appartamento trilocale con giardino privato

Appartamento trilocale con giardino privato

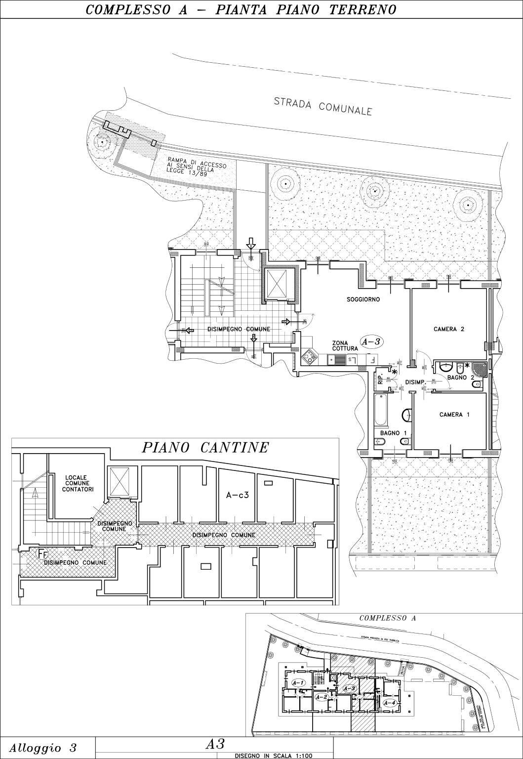
Via Ettore Fico, in complesso residenziale di recente costruzione con finiture di pregio (videocitofono, pannelli solari per acqua calda centralizzata, riscaldamento a pavimento collegato a caldaia centralizzata a metano comandata autonomamente da cronotermostato) e ascensore, proponiamo in affitto al piano terra appartamento trilocale vuoto di 75 mq composto da: ingresso living su soggiorno con angolo cottura, due camere, due bagni, disimpegno, ripostiglio e cantina. Giardino privato di 80 mq. Doppia esposizione, infissi con doppi vetri. Canone € 730,00 mensili. Massimo tre persone. Spese condominiali + spese di riscaldamento + acqua calda centralizzata acconto di € 180,00 mensili. Eventuale box auto ad € 95,00 mensili. Dipsonibile da subito. immobiliarescursatone@gmail.com - www.immobiliarescursatone.it I dati e le indicazioni esposti nell'annuncio e le foto inserite hanno carattere puramente informativo e non costituiscono elementi contrattuali.

Dettagli immobile

Superficie: 83 m2
Contratto: Affitto
Comune: Castiglione Torinese
Tipologia: Appartamento
Riferimento: A29/25
Classe energetica: A2
Prezzo: €/mese 730,00
Indirizzo: via Ettore Fico
Numero camere da letto: 2
Numero bagni: 2
Numero altre camere: 1
Tipo di cucina: Angolo cottura
Riscaldamento: Centralizzato
Arredamento: Assente
Cantina: SI
Video citofono: SI
Giardino Privato: SI
Piano: 0
Piani edificio: 3
Anno costruzione: 2010
Stato: Ottimo
Tipo di costruzione: Signorile

Richiedi informazioni

I dati forniti saranno trattati secondo i termini descritti dall'informativa sulla privacy